Porzione di bifamiliare in vendita

Portici, Via Roma - Portici Diaz
€ 398.000
6 locali 6 locali
100 Mq 100 Mq
1 bagno 1 bagno

Porzione di bifamiliare in vendita

Portici, Via Roma - Portici Diaz

Descrizione annuncio

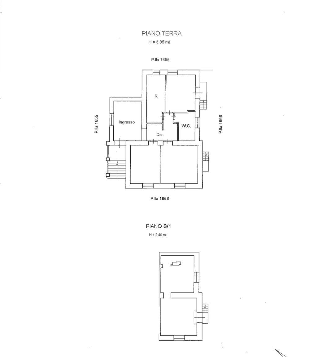
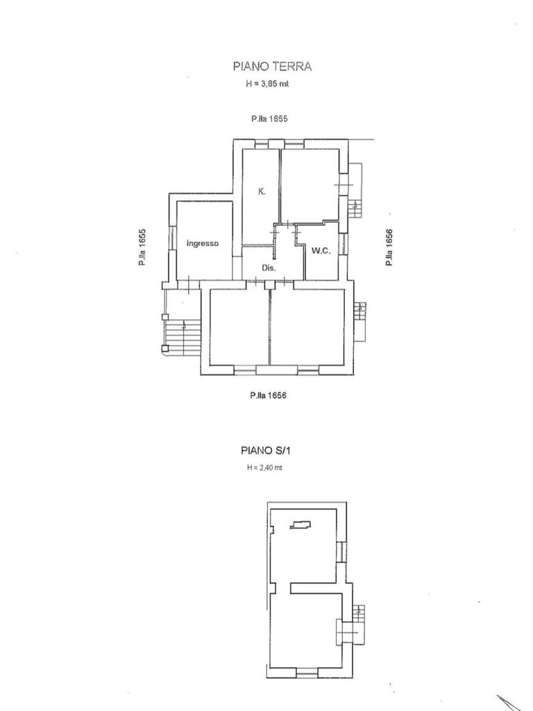
In Via Roma, all'interno di una villa d'epoca risalente agli anni '30, composta da sole due unità abitative, proponiamo in vendita una soluzione semi indipendente posta al piano rialzato, con ingresso autonomo (sia pedonale che carrabile) e ampi spazi sia interni che esterni. L'immobile, regolarmente accatastato e conforme alla planimetria depositata, si sviluppa su due livelli , consistente in 6,5 vani per un totale di 140 mq catastali , escluse le aree scoperte, ed è composto da piano rialzato con accesso dalla scala padronale esclusiva che introduce in un ampio ingresso, dal quale, con un corridoio ad L, si accede sia alla zona giorno, cucina abitabile + sala pranzo, spaziosa e luminosa , che alla zona notte, composta da due ampie camere da letto di generose dimensioni e un grande bagno finestrato con vasca e doccia. L’altezza degli ambienti è di 3,85 m. Dalla sala pranzo si può accedere direttamente alla corte esterna di 107 mq di esclusiva proprietà.

Al secondo livello ci sono due ambienti finestrati di 35 mq facilmente trasformabili in tavernetta, studio o altro, secondo le proprie esigenze. L’immobile gode di ambienti ampi e luminosi, tutti finestrati ed è l'ideale per chi cerca privacy, comodità e un contesto tranquillo ma centrale, dotato di accesso carrabile autorizzato con parcheggio privato. L'immobile dispone infatti sia di cancello pedonale che di passo carrabile esclusivi offrendo la massima comodità in termini di accesso e gestione degli spazi esterni.

Per chi avesse intenzione di acquistare attraverso l'ottenimento del mutuo, è possibile, inoltre, su richiesta, ricevere una consulenza gratuita, grazie ai nostri professionisti della KIRON (società di mediazione creditizia del gruppo) i quali offrono servizi e prodotti su misura per ogni tipo di necessità finanziaria.
VISIONABILE TUTTI I GIORNI PREVIO AVVISO TELEFONICO.
CONTATTARE IL SEGUENTE NUMERO: 081 18995356.

UN NOSTRO AGENTE SARA' PRONTO A RISPONDERE ALLE VOSTRE DOMANDE CON PROFESSIONALITA' E CORTESIA.

Mostra tutto

Nelle vicinanze

Trasporto pubblico Trasporto pubblico
stazione di Portici-Ercolano
stazione di Portici-Ercolano
830 m
Portici Bellavista
Portici Bellavista
920 m
Garibaldi - Lido Europa
Garibaldi - Lido Europa
130 m
Garibaldi - Camaggio
Garibaldi - Camaggio
200 m
stazione di Pietrarsa-San Giorgio a Cremano
stazione di Pietrarsa-San Giorgio a Cremano
1,2 Km
Ricariche auto elettriche Ricariche auto elettriche
Portici Parcheggio Comunale Multipiano | EnelX
200 m
Stazione Portici Bellavista | EnelX
940 m
Portici De Lauzieres | EnelX
1,5 Km
Portici Siani | EnelX
2,0 Km
Scuole Scuole
Istituto Macedonio Melloni
90 m
6° Istituto comprensivo Comes-Don Milani
280 m
Liceo Scientifico "Silvestri" - succursale
380 m
IPIA "Enriques" - succursale
390 m
IPIA "Enriques"
400 m
Farmacia Farmacia
Farmacia
2,1 Km
Ospedali Ospedali
Guardia medica
880 m
AZIENDA SANITARIA LOCALE NA1 - DISTR. 52
2,4 Km
Supermercati Supermercati
Euroesse
480 m
Euroesse Supermercati
550 m
MD Discount
2,0 Km
Supermercato SISA - Gruppo di Polo
2,0 Km
Maxistore Decò
2,2 Km
Negozi Negozi
Negozi
1,8 Km
OVS
2,1 Km
Bar Bar
Bar Guida
2,3 Km
Ristoranti Ristoranti
La Vineria senza Cucina
310 m
Pizzeria da Michele
560 m
Pizzeria Salvo
970 m
La Tradizione
1,2 Km
Villa La Colombaia
1,5 Km
Mostra tutto

Caratteristiche

Rif.:
61049918
Piano:
Rialzato di 2
Totale piani:
2
Posti auto:
2
Camere da letto:
3
Arredamento:
Parziale
Mostra tutto
Prezzo Prezzo
€ 398.000
Rata mutuo Rata mutuo
€ 1.875 / mese
Spese annue Spese annue
€ 0
Proponi il tuo prezzoProponi il tuo prezzo

Classe Energetica

G
G
G
G
G
G
G
G
G
EP globale rinnovabile:
175.00 kW h/m² anno
EP invernale del fabbricato:
EP estiva del fabbricato:
Anno di costruzione:
1935
Riscaldamento:
Autonomo
Tipo impianto:
A radiatori
Tipo alimentazione:
GPL

Ti interessa visionare l'immobile?

Fissa un appuntamento  Fissa un appuntamento

Richiedi informazioni

Clicca su Leggi per aprire l'informativa
* Questi campi sono obbligatori

Calcola il tuo mutuo

Semplice e senza impegno
Anticipo

( % )
Mutuo

( % )

pochi semplici passi

inserisci i tuoi dati
Questionario completato
Grazie per aver richiesto un appuntamento senza impegno con un nostro Consulente del Credito e Assicurativo.

Hai inserito correttamente tutti i dati necessari e a breve riceverai una e-mail con un link da convalidare per inviare i tuoi dati.
Affiliato
Tecnoportici Sas
Via Libertà, 71 80055 Portici (NA)

Il nostro staff


  • Emanuela Chirone
    Coordinatrice

  • Alessandro Colaci
    Collaboratore

  • Valeria De Martino
    Coordinatrice

  • Luca Amato
    Collaboratore
Via Libertà, 71 80055 Portici (NA)
Zona: Portici - Libertà
Mostra su mappa
Affiliato
Tecnoportici Sas
Via Libertà, 71 80055 Portici (NA)

2026 Tecnocasa Franchising S.p.A. - P. IVA 08365160152 - Via Monte Bianco 60/A 20089 Rozzano (MI). Ogni agenzia ha un proprio titolare ed è autonoma. Privacy policy | Policy utilizzo | Cookie policy