Trilocale in vendita

Portici, Via Benvenuto Cellini - Portici Centro Storico
€ 195.000
3 locali 3 locali
95 Mq 95 Mq
1 bagno 1 bagno

Trilocale in vendita

Portici, Via Benvenuto Cellini - Portici Centro Storico

Descrizione annuncio

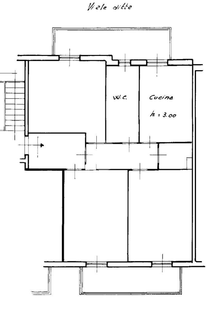
In via Benvenuto Cellini, nel cuore di Portici, proponiamo in vendita un ampio appartamento di 95 mq composto da tre vani, posto al piano rialzato e attualmente locato con contratto in scadenza a giugno 2027, con rendita annuale di 7.800.
L'immobile, situato in un contesto tranquillo e ben servito, si apre con un comodo disimpegno che conduce al corridoio centrale, lungo il quale si sviluppano gli ambienti principali, tutti caratterizzati da dall'uscita su comode balconate. Sulla destra troviamo il soggiorno e la camera matrimoniale, mentre sulla sinistra troviamo una cameretta, bagno con finestra e cucina. A completare la soluzione, un comodo ripostiglio.
Le balconate garantiscono luminosità e ottima aerazione naturale. Ideale per chi cerca un investimento sicuro o un futuro appartamento per uso personale.

Per chi avesse intenzione di acquistare attraverso l'ottenimento del mutuo, è possibile, inoltre, su richiesta, ricevere una consulenza gratuita, grazie ai nostri professionisti della KIRON (società di mediazione creditizia del gruppo) i quali offrono servizi e prodotti su misura per ogni tipo di necessità finanziaria.
VISIONABILE TUTTI I GIORNI PREVIO AVVISO TELEFONICO.
CONTATTARE IL SEGUENTE NUMERO: 081 18995356.

UN NOSTRO AGENTE SARA' PRONTO A RISPONDERE ALLE VOSTRE DOMANDE CON PROFESSIONALITA' E CORTESIA.

Mostra tutto

Nelle vicinanze

Trasporto pubblico Trasporto pubblico
Portici Via Libertà
Portici Via Libertà
640 m
Portici Bellavista
Portici Bellavista
710 m
Libertà - I Traversa Liberà
Libertà - I Traversa Liberà
260 m
Piazza San Ciro 5
Piazza San Ciro 5
260 m
stazione di Pietrarsa-San Giorgio a Cremano
stazione di Pietrarsa-San Giorgio a Cremano
1,6 Km
Ricariche auto elettriche Ricariche auto elettriche
Portici Parcheggio Comunale Multipiano | EnelX
210 m
Stazione Portici Bellavista | EnelX
720 m
Portici De Lauzieres | EnelX
1,2 Km
Portici Siani | EnelX
1,8 Km
Scuole Scuole
5° Istituto comprensivo
270 m
2° Istituto comprensivo
340 m
IPIA "Enriques"
380 m
IPIA "Enriques" - succursale
400 m
Istituto Comprensivo Da Vinci-Comes DM
400 m
Farmacia Farmacia
Farmacia
1,7 Km
Ospedali Ospedali
Guardia medica
510 m
AZIENDA SANITARIA LOCALE NA1 - DISTR. 52
2,7 Km
Supermercati Supermercati
Euroesse
110 m
Euroesse Supermercati
580 m
MD Discount
1,6 Km
Supermercato SISA - Gruppo di Polo
1,7 Km
Maxistore Decò
1,9 Km
Negozi Negozi
Negozi
1,5 Km
OVS
1,9 Km
Bar Bar
Bar Guida
2,0 Km
Ristoranti Ristoranti
La Vineria senza Cucina
670 m
La Tradizione
900 m
Pizzeria da Michele
920 m
Villa La Colombaia
1,1 Km
Pizzeria Salvo
1,2 Km
Mostra tutto

Caratteristiche

Rif.:
61135063
Piano:
1 con ascensore (Piano rialzato)
Balconi:
2
Camere da letto:
3
Condizionamento:
Assente
Ascensore:
Mostra tutto
Prezzo Prezzo
€ 195.000
Rata mutuo Rata mutuo
€ 930 / mese
Spese annue Spese annue
€ 240
Proponi il tuo prezzoProponi il tuo prezzo

Classe Energetica

G
G
G
G
G
G
G
G
G
EP globale non rinnovabile:
175.00 kW h/m² anno
EP invernale del fabbricato:
EP estiva del fabbricato:
Anno di costruzione:
1967
Riscaldamento:
Assente

Ti interessa visionare l'immobile?

Fissa un appuntamento  Fissa un appuntamento

Richiedi informazioni

Clicca su Leggi per aprire l'informativa
* Questi campi sono obbligatori

Calcola il tuo mutuo

Semplice e senza impegno
Anticipo

( % )
Mutuo

( % )

pochi semplici passi

inserisci i tuoi dati
Questionario completato
Grazie per aver richiesto un appuntamento senza impegno con un nostro Consulente del Credito e Assicurativo.

Hai inserito correttamente tutti i dati necessari e a breve riceverai una e-mail con un link da convalidare per inviare i tuoi dati.
Affiliato
Tecnoportici Sas
Via Libertà, 71 80055 Portici (NA)

Il nostro staff


  • Emanuela Chirone
    Coordinatrice

  • Alessandro Colaci
    Collaboratore

  • Valeria De Martino
    Coordinatrice

  • Pasquale Formisano
    Responsabile

  • Luca Amato
    Collaboratore
Via Libertà, 71 80055 Portici (NA)
Zona: Portici - Libertà
Mostra su mappa
Affiliato
Tecnoportici Sas
Via Libertà, 71 80055 Portici (NA)

2026 Tecnocasa Franchising S.p.A. - P. IVA 08365160152 - Via Monte Bianco 60/A 20089 Rozzano (MI). Ogni agenzia ha un proprio titolare ed è autonoma. Privacy policy | Policy utilizzo | Cookie policy