Bilocale in vendita

Portici, Via M. Naldi - Portici Centro Storico
€ 65.000
2 locali 2 locali
60 Mq 60 Mq
1 bagno 1 bagno

Bilocale in vendita

Portici, Via M. Naldi - Portici Centro Storico

Descrizione annuncio

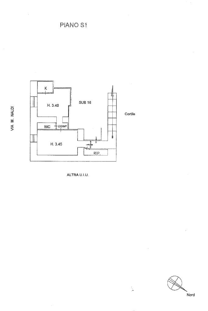
Nel cuore di Portici, in una delle aree più comode e ben collegate della città, precisamente in Via Naldi, proponiamo in vendita un appartamento accogliente di circa 60 mq. La soluzione è attualmente locata fino a Maggio 2027 con una rendita annuale garantita di 4.200,00 euro, ideale per chi cerca una soluzione a reddito.
L'ingresso si apre su un corridoio che conduce a un'ampia zona giorno open space che integra cucina e sala da pranzo in un unico ambiente armonioso e funzionale, ideale per chi cerca comfort e praticità nella vita di tutti i sinistra della zona living, un disimpegno conduce al bagno e alla spaziosa camera da letto matrimoniale, ben distribuita e luminosa.
L'immobile si trova al piano seminterrato ed è perfetto sia come prima casa che come opportunità d'investimento, grazie alla posizione strategica e alla vicinanza a tutti i principali servizi.

Per chi avesse intenzione di acquistare attraverso l'ottenimento del mutuo, è possibile, inoltre, su richiesta, ricevere una consulenza gratuita, grazie ai nostri professionisti della KIRON (società di mediazione creditizia del gruppo) i quali offrono servizi e prodotti su misura per ogni tipo di necessità finanziaria.
VISIONABILE TUTTI I GIORNI PREVIO AVVISO TELEFONICO.
CONTATTARE IL SEGUENTE NUMERO: 081 18995356.

UN NOSTRO AGENTE SARA' PRONTO A RISPONDERE ALLE VOSTRE DOMANDE CON PROFESSIONALITA' E CORTESIA.

Mostra tutto

Nelle vicinanze

Trasporto pubblico Trasporto pubblico
stazione di Portici-Ercolano
stazione di Portici-Ercolano
680 m
Portici Via Libertà
Portici Via Libertà
770 m
Garibaldi - Gianturco
Garibaldi - Gianturco
200 m
Piazza San Ciro 5
Piazza San Ciro 5
220 m
stazione di Pietrarsa-San Giorgio a Cremano
stazione di Pietrarsa-San Giorgio a Cremano
1,5 Km
Ricariche auto elettriche Ricariche auto elettriche
Portici Parcheggio Comunale Multipiano | EnelX
90 m
Stazione Portici Bellavista | EnelX
870 m
Portici De Lauzieres | EnelX
1,3 Km
Portici Siani | EnelX
1,9 Km
Scuole Scuole
IPIA "Enriques"
240 m
6° Istituto comprensivo Comes-Don Milani
270 m
Istituto Comprensivo Da Vinci-Comes DM
270 m
Istituto Macedonio Melloni
300 m
5° Istituto comprensivo
410 m
Farmacia Farmacia
Farmacia
1,8 Km
Ospedali Ospedali
Guardia medica
610 m
AZIENDA SANITARIA LOCALE NA1 - DISTR. 52
2,7 Km
Supermercati Supermercati
Euroesse
260 m
Euroesse Supermercati
440 m
MD Discount
1,7 Km
Supermercato SISA - Gruppo di Polo
1,8 Km
Supermercati
2,0 Km
Negozi Negozi
Negozi
1,5 Km
OVS
2,0 Km
Bar Bar
Bar Guida
2,0 Km
Ristoranti Ristoranti
La Vineria senza Cucina
590 m
Pizzeria da Michele
840 m
La Tradizione
1,1 Km
Pizzeria Salvo
1,2 Km
Villa La Colombaia
1,3 Km
Mostra tutto

Caratteristiche

Rif.:
61087854
Totale piani:
2
Camere da letto:
2
Arredamento:
Completo
Condizionamento:
Assente
Ascensore:
No
Mostra tutto
Prezzo Prezzo
€ 65.000
Rata mutuo Rata mutuo
€ 310 / mese
Spese annue Spese annue
€ 300
Proponi il tuo prezzoProponi il tuo prezzo

Classe Energetica

G
G
G
G
G
G
G
G
G
EP globale rinnovabile:
175.00 kW h/m² anno
EP invernale del fabbricato:
EP estiva del fabbricato:
Anno di costruzione:
1940
Riscaldamento:
Assente

Ti interessa visionare l'immobile?

Fissa un appuntamento  Fissa un appuntamento

Richiedi informazioni

Clicca su Leggi per aprire l'informativa
* Questi campi sono obbligatori

Calcola il tuo mutuo

Semplice e senza impegno
Anticipo

( % )
Mutuo

( % )

pochi semplici passi

inserisci i tuoi dati
Questionario completato
Grazie per aver richiesto un appuntamento senza impegno con un nostro Consulente del Credito e Assicurativo.

Hai inserito correttamente tutti i dati necessari e a breve riceverai una e-mail con un link da convalidare per inviare i tuoi dati.
Affiliato
Tecnoportici Sas
Via Libertà, 71 80055 Portici (NA)

Il nostro staff


  • Emanuela Chirone
    Coordinatrice

  • Alessandro Colaci
    Collaboratore

  • Valeria De Martino
    Coordinatrice

  • Pasquale Formisano
    Responsabile

  • Luca Amato
    Collaboratore
Via Libertà, 71 80055 Portici (NA)
Zona: Portici - Libertà
Mostra su mappa
Affiliato
Tecnoportici Sas
Via Libertà, 71 80055 Portici (NA)

2026 Tecnocasa Franchising S.p.A. - P. IVA 08365160152 - Via Monte Bianco 60/A 20089 Rozzano (MI). Ogni agenzia ha un proprio titolare ed è autonoma. Privacy policy | Policy utilizzo | Cookie policy